Nasze Realizacje

Wybrane projekty i realizacje

Projekt 1 - zdjęcie główne
Projekt 1 - miniatura 1
Projekt 1 - miniatura 2
Projekt 1 - miniatura 3

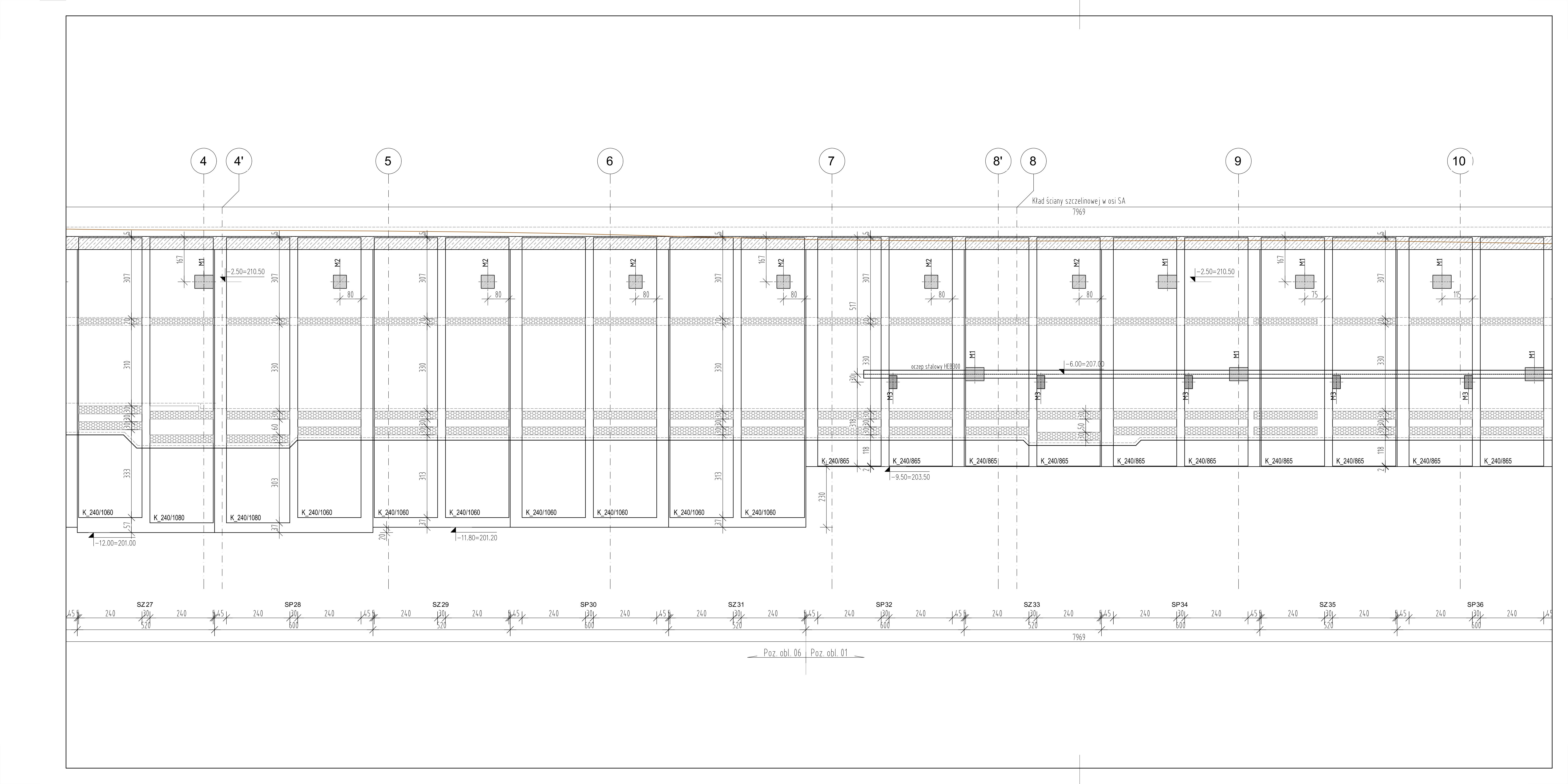
Poznań, ul. Ogrodowa

Wygrodzenie wykopu dla dwóch kondygnacji podziemnych budynku mieszkalnego w technologii ścian szczelinowych grubości 50cm. Budynek znajduje się w ścisłej zabudowie śródmiejskiej, z każdej ze stron otoczony budynkami sąsiednimi. W celu zminimalizowania odkształceń przyjęto realizację obudowy wykopu z zastosowaniem konstrukcji tymczasowego rozparcia w dwóch poziomach.

Specjalistyczne roboty fundamentowe (ściany szczelinowe) wraz z konstrukcją tymczasowego rozparcia wykonało przedsiębiorstwo PTB Tranzyt.

Projekt 2 - zdjęcie główne
Projekt 2 - miniatura 1
Projekt 2 - miniatura 2
Projekt 2 - miniatura 3
Projekt 2 - miniatura 4
Projekt 2 - miniatura 5

Kraków, ul. Wadowicka.

Opracowano projekt wygrodzenia wykopu dla dwóch kondygnacji podziemnych w technologii ścian szczelinowych grubości 60cm. Budynek znajduje częściowo w granicach terenu górniczego „Mateczny I”, w obszarze których występują wody mineralne. Z uwagi na warunki ochrony obszaru górniczego, możliwe było wykonanie ścian szczelinowych do max. głębokości około 9m p.p.t., zatem konstrukcję tymczasowego rozparcia w tej części obiektu zaprojektowano w dwóch poziomach.

Specjalistyczne roboty fundamentowe (ściany szczelinowe) wraz z konstrukcją tymczasowego rozparcia wykonało przedsiębiorstwo PTB Tranzyt.